Antradienį Kaune greta Neries oficialiai įbetonuota kapsulė su laišku ateities kartoms, simbolizuojanti įsibėgėjančią Brastos tilto statybą. Rangovų teigimu, pėstiesiems ir dviratininkams skirtos naujosios susisiekimo arterijos perdangai prireiks 961 tonos plieno. Tai bus ilgiausias tokios paskirties tiltas per upę Lietuvoje ir jau ketvirtoji statoma jungtis Kaune per pastaruosius kelerius metus.
PRISIDĖS PRIE DARNAUS JUDUMO MIESTE
Naujoji jungtis tarp Nemuno ir Neries santakos bei P.Vileišio tilto (PV T.Kasperavičius, arch. J.Žalys) pradėta statyti dar praėjusių metų rudenį. Vadinamasis Brastos tiltas bus skirtas išskirtinai pėstiesiems ir dviratininkams, darniai įsilies į abipus upės esančius takus.
Jis neabejotinai pagerins susisiekimą tarp Senamiesčio ir sparčiai augančios Vilijampolės, o architektūra turėtų derėti svarbioje miesto panoramoje. Architektų komandos „313 architects“ vadovas Justinas Žalys dėkojo prie projekto dirbusiems konstruktoriams: G.Šakaliui, D.Rupšiui ir architektūrinių bei estetinių sprendimų autorei G.Laniauskaitei. Pasak jo, tokio tipo objektuose itin svarbu suderinti ne tik techninius sprendimus, bet ir architektūrinę išraišką. „Esame labai laimingi tapę Kauno darnaus judumo plano dalimi. Šis tiltas, mano supratimu, labai stipriai prisidės prie pėsčiųjų ir dviratininkų judėjimo. Didžiausias iššūkis buvo pati teritorija – „Natura 2000“ zona, Neries upė, Senamiestis, miesto centras ir Kauno pilis. Reikėjo ne tik techniškai įveikti sudėtingą vietą, bet ir užtikrinti, kad tiltas neužgožtų pilies, o jo architektūrinė išraiška atspindėtų mūsų laikmetį“, – pabrėžė J.Žalys.
Jo teigimu, numatyti ir išskirtiniai architektūriniai elementai – amfiteatras bei suoliukai. Per visą tilto ilgį nusidrieks speciali „liniuotė“, leidžianti simboliškai išmatuoti vieną ilgiausių pėsčiųjų ir dviratininkų tiltų Lietuvoje. PILOTAS.LT žiniomis prie tilto architektūros koncepcijos parengimo ženkliai prisidėjo ir architekto Šarūno Kiaunės studija.
PERDANGA SIEKS 302 METRUS
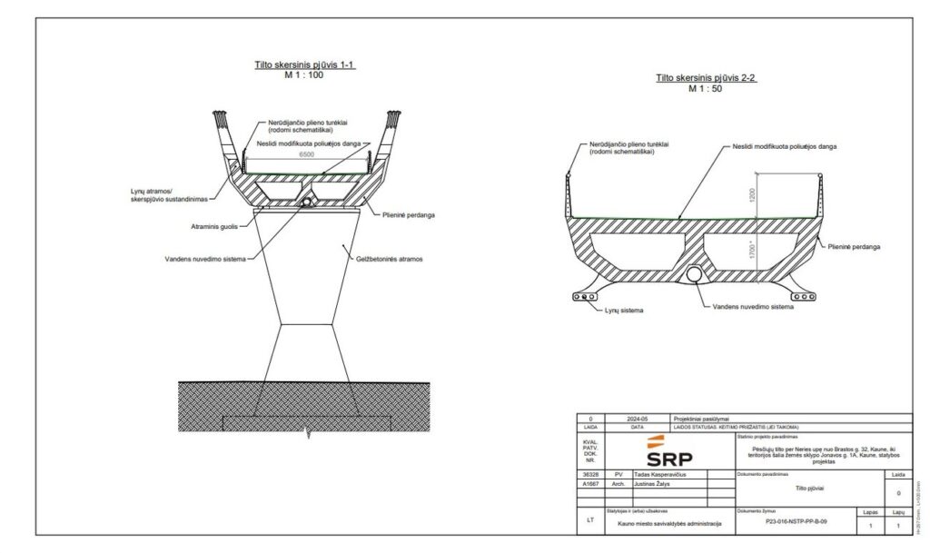
Statybvietėje kone pilnai įrengtos trys atramos. 302 metrų ilgio ir 6,5 m pločio tilto perdanga – gamyboje. Vien jai bus panaudota 961 tona plieno.
„Miestas turi puikų šeimininką ir stiprią komandą, vystančią projektus, džiuginančią mus visus, darančią mūsų miestą gražesnį, šviesesnį ir patogesnį. Šis tiltas ne tik sujungs dvi miesto puses, bet ir žmones. Jis puoš miestą, didins jo patogumą ir kurs dar didesnę vertę ateičiai. Tiltą laikys atramose įtempti trosai, todėl jo vaizdas bus lengvas, elegantiškas ir estetiškas.
Duok Dieve, kad mūsų miestas būtų toliau taip puoselėjamas, gražinamas ir prižiūrimas, kaip tai vyksta jau daugiau nei dešimtmetį“, – ceremonijoje kalbėjo tiltą statančios bendrovės „Autokausta“ vadovas Juozas Kriaučiūnas
Brastos tilto statybų kaina – 9,85 mln. eurų su PVM.
Šiuo metu Kaune statomi trys tiltai ir viadukas. Pastarasis, besitęsiantis per A1 magistralę ties Ašigalio gatve, artimiausiu metu bus atidarytas. Naujoji jungtis Eiguliuose turės greitėjimo ir lėtėjimo juostas, atsiras nauja kryptis pajūrio link.
Tarp Nemuno salos ir Žemosios Fredos pusiaukelę peržengė pėsčiųjų ir dviratininkų tilto statybos, o tarp Užnemunės ir Brastos gatvių sparčiai artėja Santakos tilto statybų pabaiga. Šis turės keturias eismo juostas, pėsčiųjų ir dviračių takus.
Ateities planuose – nauja arterija tarp Šilainių ir Eigulių, sujungsianti Baltų prospektą su Žeimenos bei Jonavos gatvėmis.
Titulinė nuotrauka: Brastos tiltas per Nerį Kaune (PV T.Kasperavičius, arch. J.Žalys).

Kaune įsibėgėjo Brastos tilto per Nerį statybos. Foto: Kauno savivaldybės.

Brastos tiltas per Nerį Kaune (PV T.Kasperavičius, arch. J.Žalys).

Brastos tiltas per Nerį Kaune (PV T.Kasperavičius, arch. J.Žalys).

Brastos tiltas per Nerį Kaune (PV T.Kasperavičius, arch. J.Žalys).

















































