Klaipėdoje, Vilnius Tech Lietuvos jūreivystės akademijos (LJA) teritorijoje iškilmingai pradėtos naujo Jūrų inžinerijos ir atsinaujinančios energijos kompetencijų centro statybos. I.Kanto gatvėje iškilsiantis 1500 kv. m ploto pastatas taps pirmuoju tokio tipo, infrastruktūros ir galimybių objektu visoje Lietuvoje, kur susitiks jūra, mokslas ir inovacijos.
SIEKIA STIPRINTI JŪRINES KOMPETENCIJAS
2026-aisiais Klaipėdoje iškilsiantis Vilnius Tech Lietuvos jūreivystės akademijos kompetencijų centras (arch. G.Petrauskas, A.Baužys (PV), L.Marčiulaitienė; projektuotojas UAB „Du kart du“) sujungs jūrų inžinerijos, atsinaujinančios energijos bei modernių mokymų pasaulius. Šis projektas – svarbus žingsnis Klaipėdai: jis ilgainiui sutvirtins miesto ekonominį potencialą, pritrauks investicijas ir kurs naujas galimybes Klaipėdos jaunimui bei verslui.
Besiplečianti LJA infrastruktūra yra reikšminga ne tik vietiniame, bet ir tarptautiniame kontekste: pažangus kompetencijų centras išryškina Lietuvos, kaip aukštųjų jūrinės inžinerijos technologijų ir inovacijų židinio, poziciją visame regione. Jį statys Telšių statybos paslaugų įmonė UAB „Versina“.
Jūrų inžinerijos ir atsinaujinančios energijos kompetencijų centro statybos gimė iš universiteto, miesto ir valstybės siekio sustiprinti Lietuvos jūrines kompetencijas ir atsiverti naujoms galimybėms. Čia bus rengiami aukščiausios kvalifikacijos jūrininkai, jūrinės pramonės ir jūrinių vėjo jėgainių aptarnavimo specialistai, kurių paklausa, ruošiantis jūrinių vėjo jėgainių parko statyboms Lietuvos išskirtinėje ekonominėje zonoje, auga itin sparčiai.
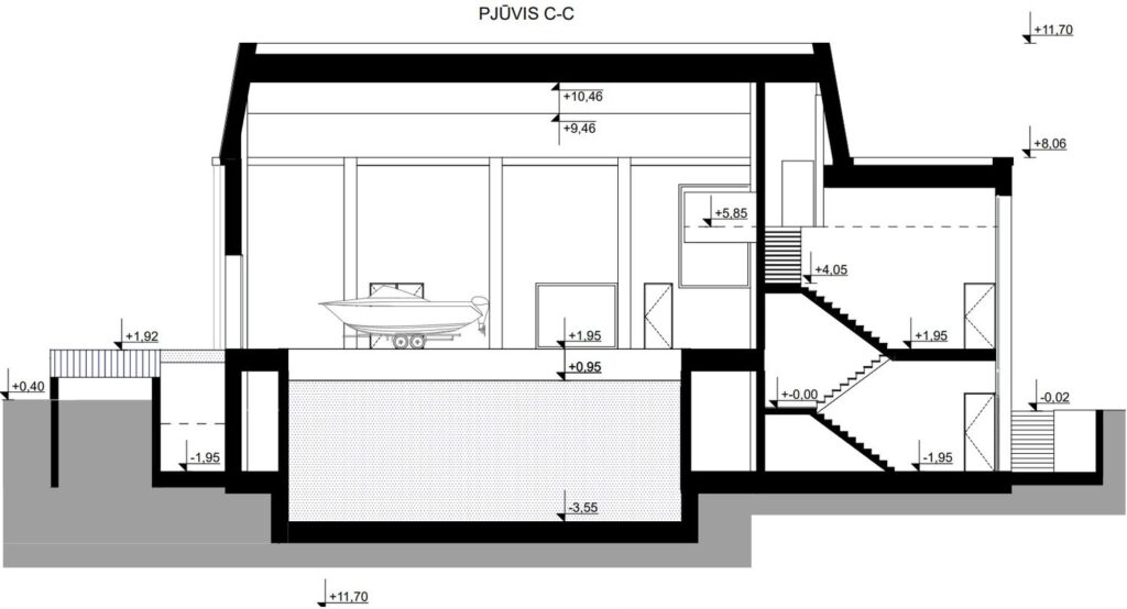
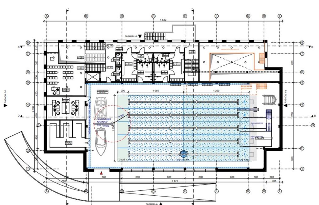
Pastate įsikurs administracinės, specializuotos mokomosios ir pagalbinės patalpos. Pagrindiniai du šio objekto elementai – penkių takų, 25 m ilgio baseinas su bangų generatoriumi ir aukštalipių rengimo aikštelė. Šios ir kitos mokymo erdvės bus aprūpintos pažangia įranga, leidžiančia vykdyti GWO, OPITO HUET, SOLAS kursus, evakuacijos iš keltų ir kitus jūrininkų bei jūrinės pramonės specialistų rengimui skirtus praktinius mokymus. Tam įsigyti du virtualios realybės (VR) simuliatoriai: vienas skirtas aukštalipių mokymui, o kitas – laivo tiltelio simuliacijai, turintis dirbtinio intelekto (DI) funkciją.
Mokslininkai ir studentai taip pat galės dirbti su laboratorine įranga, kuri leis įgyti kompetencijų, susijusių su vėjo, saulės ir vandenilio energijos gamyba bei panaudojimu. Naujajame centre ketinama įrengti ir nepilotuojamų transporto priemonių bandymų poligoną.
STATYBAI PRIREIKS 5,5 MLN. EURŲ
Pastato statybai prireiks apie 5,5 mln. eurų, įrangos įsigijimui numatyta skirti dar apie 800 tūkst. eurų. Projektas „Aukštos kvalifikacijos vandens transporto sektoriaus specialistų rengimo kokybės, efektyvumo ir tarptautinio konkurencingumo didinimas, reorganizuojant VšĮ Lietuvos aukštąją jūreivystės mokyklą prijungimo prie VšĮ Vilniaus Gedimino technikos universiteto būdu“ finansuojamas Europos Sąjungos Ekonomikos gaivinimo ir atsparumo didinimo priemonės (EGADP) lėšomis, numatytos ir Vilnius Tech investicijos.
Vilnius Tech nuolat investuoja ir į infrastruktūros atnaujinimą – studijų, mokslo, darbo ir gyvenimo aplinkos gerinimą. Pavasarį prasidėjo naujo VILNIUS TECH Antano Gustaičio aviacijos instituto (AGAI) pastato statybos – moderniame 840 kv. m. priestate 2026 m. bus įkurtos mokslui, studijoms ir administracijai skirtos patalpos. Šiuo metu taip pat tęsiama bendrabučių ir Statybinių medžiagų instituto laboratorijų renovacija, įrenginėjamas Skaitmeninės gynybos kompetencijų centras, rengiamas Aplinkos inžinerijos fakulteto ir amfiteatro lauko erdvių atnaujinimo projektas. Artimiausiu metu prasidės ir Fundamentinių mokslų fakulteto I laboratorijų korpuso – didžiausio Saulėtekio universitetiniame miestelyje – renovacija.
Parengta pagal Vilnius Tech informaciją.
Titulinė nuotrauka: Jūrų inžinerijos ir atsinaujinančios energijos kompetencijų centras (arch. G.Petrauskas, A.Baužys (PV), L.Marčiulaitienė).

Jūrų inžinerijos ir atsinaujinančios energijos kompetencijų centras (arch. G.Petrauskas, A.Baužys (PV), L.Marčiulaitienė).

Jūrų inžinerijos ir atsinaujinančios energijos kompetencijų centras (arch. G.Petrauskas, A.Baužys (PV), L.Marčiulaitienė).

Jūrų inžinerijos ir atsinaujinančios energijos kompetencijų centras (arch. G.Petrauskas, A.Baužys (PV), L.Marčiulaitienė).

Jūrų inžinerijos ir atsinaujinančios energijos kompetencijų centras (arch. G.Petrauskas, A.Baužys (PV), L.Marčiulaitienė).

Jūrų inžinerijos ir atsinaujinančios energijos kompetencijų centras (arch. G.Petrauskas, A.Baužys (PV), L.Marčiulaitienė).

Jūrų inžinerijos ir atsinaujinančios energijos kompetencijų centras (arch. G.Petrauskas, A.Baužys (PV), L.Marčiulaitienė).



















































