odon_kn_251100_tit_xxx

4 AUKŠTŲ LSMU AMBICIJA: Savarankiškai statys Odontologijos fakultetą

2025-11-21
PILOTAS.LT

Lietuvos sveikatos mokslų universitetas (LSMU) ir bendrovė „Autokausta“ pasirašė naujo Odontologijos fakulteto pastato statybos rangos sutartį. Tai – strateginis Universiteto projektas, kuris taps svarbiausiu šiuolaikinės odontologijos studijų, mokslo ir klinikinės praktikos vienovę ir kokybę užtikrinančiu infrastruktūros pokyčiu Lietuvoje per pastaruosius keletą dešimtmečių.

PIRMASIS SAVARANKIŠKAS UNIVERSITETO PROJEKTAS
„Naujasis Odontologijos fakultetas – itin ambicingas ir pirmasis Universiteto savarankiškai (be tikslinio valstybės prisidėjimo) įgyvendinamas, itin reikšmingas projektas, atversiantis daug naujų galimybių Universitetui, Kauno regionui ir visai Lietuvai. Šiuolaikinė infrastruktūra studentams suteiks puikias sąlygas įgyti praktinių ir klinikinių įgūdžių, mokslininkams padės plėtoti aukščiausio lygio mokslinius tyrimus, kurti naujus diagnostikos ir terapijos metodus“, – pabrėžė LSMU rektorius prof. dr. Rimantas Benetis.
LSMU Odontologijos fakulteto dekanas prof. dr. Dainius Razukevičius akcentavo, kad projektui pasirengta itin nuosekliai ir profesionaliai, kuriant šią naują infrastruktūrą perimta geriausia tarptautinė patirtis, išgryninti sprendimai, geriausiai atliepsiantys ateities odontologijos studijų ir mokslo poreikius.
„Sukūrėme projektą, kuris padės mūsų studentams mokytis tokiomis sąlygomis, kokios šiandien suteikiamos pažangiausiuose pasaulio universitetuose. Džiaugiamės, kad LSMU šį projektą patvirtino, ir pradedame naują etapą – statybas“, – kalbėjo prof. dr. D.Razukevičius.

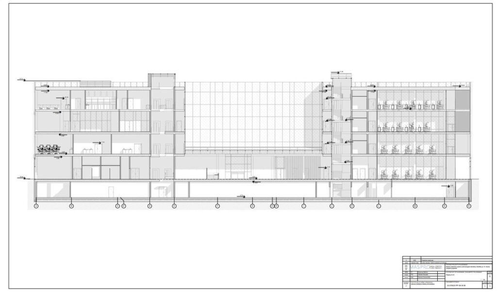
SUKOMPONAVO IŠ 3 SUJUNGTŲ TŪRIŲ
4 aukštų 9.200 kv. m. bendrojo ploto naujasis fakultetas netaisyklingos trapecijos formos sklype Sukilėlių pr. 51, Kaune suprojektuotas lygiagrečiai Žeimenos gatvei. Trijų „prastumtų“ sujungtų tūrių pastatas čia formuos vidinius kiemus ir perimetrinį užstatymą (projektuotojas „Maspro“; PV M.Mačiulis, PDV G.Šliurpaitė, arch. R.Grencevičiūtė). Taip siekiama racionaliai ir kompaktiškai išnaudoti sklypo plotą, nepaliekant jokios neišnaudotos erdvės. Atitraukti vienas nuo kito tūriai skirsis savo paskirtimi bei kurs viešąsias lauko zonas, vidinį kiemelį. Įterpiami vertikaliniai skaidrūs segmentai čia yra skirti judėjimui ir vertikaliems ryšiams. Skaidrūs stikliniai elementai taip pat žada sukurti peržvelgiamumo ir sąsajos su kaimyniniu kontekstu pojūtį.
Fakultetas užprogramuotas tapti vienu moderniausių odontologijos studijų centrų regione. Jame numatyta įrengti modernų simuliacijų centrą su 60 klinikinių simuliatorių, dešimt pažangių trimačių virtualiosios realybės (3D/VR) simuliatorių, naujos kartos fantomų sales, modernias studijų-klinikinės praktikos erdves, mokslo laboratorijas su naujausia įranga, erdves tarptautiniams rezidentų, dėstytojų ir tyrėjų mokymams.
Kaunas tampa vis labiau tarptautiniu akademiniu miestu, kuris pritraukia talentus, užsienio investicijas, kuria konkurencingą aukštojo mokslo aplinką visame Baltijos regione. Į LSMU kasmet atvyksta vis daugiau užsienio studentų, kurie sudaro apie 50 proc. Odontologijos fakulteto studentų. Užsienio studentai aktyviai naudojasi miesto infrastruktūra, moka mokesčius, palaiko vietos verslus – nuo maitinimo įstaigų iki paslaugų sektoriaus. Jų atvykimas didina oro uostų keleivių srautus, skatina viešojo transporto, vežėjų, apgyvendinimo sektoriaus augimą.
Planuojama, kad Odontologijos fakultetas bus atidarytas 2028 metų pradžioje.
Parengta pagal LSMU ir PILOTAS.LT informaciją.
Titulinis pav.: LSMU Odontologijos fakultetas (projektuotojas „Maspro“; PV M.Mačiulis, PDV G.Šliurpaitė, arch. R.Grencevičiūtė).

LSMU Odontologijos fakultetas (projektuotojas „Maspro“; PV M.Mačiulis, PDV G.Šliurpaitė, arch. R.Grencevičiūtė).

LSMU Odontologijos fakultetas (projektuotojas „Maspro“; PV M.Mačiulis, PDV G.Šliurpaitė, arch. R.Grencevičiūtė).

odon_kn_251100_e01_xxx

odon_kn_251100_e03_xxx

Komentarai

  1. Ar nebuvo architektūrinio konkurso šiam objektui?

Rašyti komentarą

Susije straipsniai

urban_pl_260100_e01_xxx

ARCHITEKTŪRA IR INOVACIJA: 3 požiūriai į Kauno miesto urbanistinės struktūros atsparumą

2026 sausio 6Be komentarųPILOTAS.LT

Vilnius Tech Architektūros fakulteto bendruomenė rytoj rengia Urbanistikos katedros kuruojamo studijų modulio „Architektūra ir inovacija“ projektų pristatymą. Akademiniuose projektuose atsispindi 3 požiūriai į Kauno miesto

staty_kn_260100_e01_xxx

SUJUDIMAS KAIRIAJAME NEMUNO KRANTE: Prasidėjo M.K.Čiurlionio koncertų centro statybos

2026 sausio 5Be komentarųPILOTAS.LT

Kairiajame Nemuno krante, Kaune prasidėjo M.K.Čiurlionio koncertų centro statybos. 23.000 kv. metrų pastato statybų gen. rangovas – Kauno valdžios numylėta „Autokausta“. STATYBŲ PRADŽIA UŽTRUKO PUSMEČIU

tekto_st_251200_e01_xxx

VILNIUS TECH ATSIVERIA: Architektūros fakultetas kviečia į Meno darbų ir projektų peržiūras

2025 gruodžio 10Be komentarųPILOTAS.LT

Vilniaus Gedimino technikos universiteto (VILNIUS TECH) Architektūros fakulteto bendruomenė pakvietė apsilankyti rudens semestro meno darbų ir projektų peržiūrose-parodose, kuriose pristatomi Architektūros, Kraštovaizdžio architektūros ir Pramonės

odon_kn_251100_tit_xxx

4 AUKŠTŲ LSMU AMBICIJA: Savarankiškai statys Odontologijos fakultetą

2025 lapkričio 211 KomentarasPILOTAS.LT

Lietuvos sveikatos mokslų universitetas (LSMU) ir bendrovė „Autokausta“ pasirašė naujo Odontologijos fakulteto pastato statybos rangos sutartį. Tai – strateginis Universiteto projektas, kuris taps svarbiausiu šiuolaikinės

M.K.Čiurlionio koncertų centras Žemojoje Fredoje, Kaune (projektuotojai: „Paleko archstudija“, „Baltic Engineers“).

KONCERTŲ SALĘ STATYS „AUTOKAUSTA“: Teismas atmetė bendrovės „Infes“ skundą

2025 lapkričio 12Be komentarųPILOTAS.LT

Dėl bendrovės „Infes“ ieškinių kone pusmečiui teismuose įstrigusi M.K.Čiurlionio koncertų centro statybos darbų pradžia dar kartą sulaukė žalios šviesos. Lapkričio 11-ąją Lietuvos apeliacinis teismas atmetė

stude_sk_251100_tit_xxx

APIE UNIKALUMĄ IR GALIMYBES: Vilnius Tech architektūros studentų „desantas“ Skuode

2025 lapkričio 7Be komentarųPILOTAS.LT

Kas sakė, kad Lietuvoje yra tik Vilnius, Kaunas, Klaipėda, o mažieji miestai pasmerkti išnykti? Skuodo rajono savivaldybė šį stereotipą drąsiai griauna – čia pristatyta Vilniaus

gehl_pl_251000_e01_xxx

ARCHITEKTŪRA IR KONTEKSTAI: Vilnius Tech architektūros studentų diskusija su prof. Janu Gehlu

2025 spalio 27Be komentarųPILOTAS.LT

Vilnius Tech Architektūros fakulteto skaitykloje vyks ketvirto kurso studentų Niukaslo miesto tyrimų pristatymas. Vyks diskusija su miesto filosofu prof. Janu Gehlu (Jan Gehl, Danija). Spalio

basei_sl_250800_e04_xxx

DAUGIAU SVEIKATINIMOSI ŠIAULIAMS: Atidarytas naujas „Eglės“ reabilitacijos centras

2025 rugpjūčio 1Be komentarųPILOTAS.LT

Šiauliuose, greta neseniai pastatytų „Vilmers“ padelio namų duris atvėrė naujas „Eglės“ reabilitacijos centras. Jo pašonėje dar šiemet pradės veikti ir baseinas su pirčių zona.  ATNEŠA SANATORIJŲ PASIDIDŽIAVIMĄ

Dviratininkų ir pėsčiųjų tiltas per Nerį Kaune (projektuotojas – „SRP Projektas“, architektai – Šarūno Kiaunės projektavimo studija).

KAUNE TĘSIASI TILTŲ METAI: Savivaldybės numylėtiniai pastatys dar vieną tiltą

2025 birželio 25Be komentarųPILOTAS.LT

Tiltų metai Kaune tęsiasi. Pernai įsibėgėjus dviejų naujų jungčių statyboms per Nemuną, jau greitai startuos dar vienerios – šį mėnesį oficialiai pasirašyta sutartis dėl darbų

stude_kn_250600_e01_xxx

TVARUMO ISTORIJOS: KTU Architektūros mokyklos studentų paroda Kauno menininkų namuose

2025 birželio 11Be komentarųPILOTAS.LT

Kauno technologijos universiteto (KTU) Architektūros mokykla Kauno menininkų namuose rengia parodą „Tvarumo istorijos“. Studentai ir dėstytojai čia kviečia į susitikimą su architektūra bei skatina pažvelgti

lobor_kl_250500_e03_xxx

KLAIPĖDOS UNIVERSITETAS PLEČIASI: Kuriamos naujos erdvės ateities medikams ir inžinieriams

2025 gegužės 14Be komentarųPILOTAS.LT

Klaipėdos universiteto miestelyje artimiausiu metu prasidės reikšmingas infrastruktūros plėtros etapas – jau suprojektuotas naujas Laboratorijų korpusas, kuris apjungs medicininių simuliacijų centrą bei inžinerines ir biotechnologijų

manie_kn_250500_e01_xxx

SPORTO MEISTRŲ KALVĖ: Kaune atidarytas Prezidento Valdo Adamkaus lengvosios atletikos maniežas

2025 gegužės 7Be komentarųPILOTAS.LT

Kaunas ką tik oficialiai užbaigė paskutinę Žaliakalnio sporto komplekso dėlionės dalį – atvėrė Prezidento Valdo Adamkaus lengvosios atletikos maniežą. Tai visavertė sporto bazė su šešiais

telyc_pi_250400_e02_xxx

TAPSMO ARCHITEKTŪRA: Paskelbti 10-tojo architektūrinio piešinio konkurso laureatai

2025 balandžio 29Be komentarųPILOTAS.LT

Lietuvos aukštųjų architektūros mokyklų architektūrinio piešinio konkurso „Tapsmo architektūra“ nugalėtoja tapo Vilniaus Gedimino technikos universiteto (VILNIUS TECH) studentė Augustė Telyčėnaitė. Neseniai įvyko 10-tasis architektūrinio piešinio

saule_ko_250400_tit2_xxx

SAULĖTEKIO PERPLANAVIMAS: VU architektūriniame konkurse varžosi 7 ambicingi projektai

2025 balandžio 181 KomentarasPILOTAS.LT

Vilniaus universiteto (VU) Saulėtekio miestelio komplekso atnaujinimo ir naujo Matematikos ir informatikos fakulteto architektūrinis konkursas sulaukė 7 ambicingų pasiūlymų. Konkurso būdu siekiama išrinkti geriausią projektą,

bendr_kl_230800_e01_xxx

BENDRABUTIS STUDENTAMS: Klaipėdos universitetas sukirto rankomis su „Infes“ statybininkais

2025 balandžio 10Be komentarųPILOTAS.LT

Klaipėdos universiteto ir UAB „Infes“ vadovai oficialiai pasirašė sutartį dėl naujo bendrabučio statybų. Studentams skirtas 141 kambarių bendrabutis numatytas plėtojamame KU miestelyje. Siekiant skatinti studentų

mokyk_ri_250400_e02_xxx

AMBINCINGAS PLĖTROS PROJEKTAS: Atnaujins Riešės šv. Faustinos Kovalskos pagrindinę mokyklą

2025 balandžio 12 KomentaraiPILOTAS.LT

Planuojamas Vilniaus r. Riešės šv. Faustinos Kovalskos pagrindinės mokyklos atnaujinimas – laukia ambicingas plėtros projektas, kuriuo siekiama modernizuoti tiek pačią mokyklą, tiek sukurti naujas erdves

akmen_kr_250300_e03_xxx

KEIS KRETINGOS VEIDĄ: Planuojama gaivinti Akmenos pakrantes

2025 kovo 25Be komentarųPILOTAS.LT

Kretingos rajono savivaldybė ruošiasi įgyvendinti didžiulį projektą, keisiantį Kretingos miesto veidą. Anksčiau sunkiai prieinama Akmenos upės teritorija žada pavirsti modernia ir patogia gamtos grožį atskleidžiančia

pasau_pl_250300_tit_xxx

PRIKLAUSANTYS PASAULIO PABAIGAI: Grupinė paroda Lietuvos dailininkų sąjungos projektų erdvėje

2025 kovo 18Be komentarųPILOTAS.LT

Menininkas sąžiningas ir laisvas kūryboje, todėl esant nepalankioms aplinkybėms, jis priverstas išvykti, atsiriboti. Tai pokalbis iš parodos „Belonging to the End of the World“, kuri

archi_st_250300_e01_xxx

TOLIAU RUOŠ ARCHITEKTUS: VDA architektūros studijų kryptį akreditavo 7 metams

2025 kovo 18Be komentarųPILOTAS.LT

Pernai metų pabaigoje Vilniaus dailės akademijoje vyko architektūros studijų krypties išorinis vertinimas. Architektūros krypties studijos tarptautinių ekspertų įvertintos teigiamai, o kryptis – akredituota maksimaliam 7

valev_in_250300_e02_xxx

BENDRADARBIAUS SU INDAIS: VDA pasirašė bendradarbiavimo sutartį su Ananto universitetu

2025 kovo 5Be komentarųPILOTAS.LT

Vilniaus dailės akademijos (VDA) dėstytoja, Animacijos studijų programos koordinatorė, doc. Gintarė Valevičiūtė-Brazauskienė lankėsi Indijoje, Anant National University (ANU) Ahmadabade. Vizito metu buvo pasirašyta bendradarbiavimo sutartis, kuri atveria

geras_vn_250200_e03_xxx

KURIANTYS RYTOJUI: Vilnius Tech architektūros studentams išdalinti GERAS 2025 apdovanojimai

2025 vasario 27Be komentarųPILOTAS.LT

Vilniaus Gedimino technikos universiteto (VILNIUS TECH) Architektūros fakulteto (AF) studentams išdalinti GERAS 2025 apdovanojimai. Studentų organizuojamame renginyje buvo apdovanoti 40 geriausių Architektūros, Kraštovaizdžio architektūros ir

dizai_pl_250200_e01_xxx

STOKHOLMO BALDŲ MUGĖ: Pristatoma Vilniaus dailės akademijos Dizaino katedros studentų paroda

2025 vasario 3Be komentarųPILOTAS.LT

Vasario 4–8 dienomis Stokholmo baldų mugėje bus pristatoma Vilniaus dailės akademijos Dizaino katedros studentų paroda su prancūzų dizaineriu ir dizaino agentūros „Faire“ įkūrėju Jeanu-Baptiste’u Auvray.

ortop_kn_241200_e01_xxx

NAUJASIS LSMU „TRAUMPUNKTAS“: Nuo sausio pacientų lauks Šilainiuose

2024 gruodžio 3Be komentarųPILOTAS.LT

Iki šiol Gedimino gatvėje paslaugas teikę traumatologai ruošiasi įkurtuvėms naujose erdvėse Šilainiuose, kur ką tik baigtas statyti Ortopedijos traumatologijos korpusas. Naujasis pastatas su moderniomis operacinėmis,

ligon_kn_242200_e01_xxx

PAŠVENTINO STATYBVIETĘ: Kaune pradėtas statyti Skubios pagalbos ir reanimacijos korpusas

2024 lapkričio 27Be komentarųPILOTAS.LT

LSMU Kauno ligoninės Josvainių gatvės padalinyje iškilmingai pradėtas statyti Skubios pagalbos ir reanimacijos korpusas. Rekonstruotame pastate bus koncentruojama trijų skyrių, dabar įsikūrusių Josvainių g. 2,

saule_vn_241000_e01_xxx

VILNIAUS UNIVERSITETAS ATSINAUJINS: Skalbiamas architektūros idėjų konkursas

2024 spalio 28Be komentarųPILOTAS.LT

Vilniaus universitetas organizuoja naujo Matematikos ir informatikos fakulteto pastato ir Saulėtekio pastatų komplekso atnaujinimo konkursą. Su projekto konkurso laimėtoju numatoma sudaryti projektavimo paslaugų pirkimo sutartį.